CLT op Centrumeiland

IJburg // Amsterdam

De eilanden van IJburg hebben elk een eigen sfeer, karakter en woonmilieu. Centrumeiland, klein en compact, kenmerkt zich door het sterke contrast tussen de ruime oevers en het beschutte binnengebied. De stedelijke uitstraling wordt versterkt door de overwegend vier tot zes verdiepingen hoge bebouwing en de zorgvuldig ingerichte openbare ruimte, die met Amsterdamse materialen is vormgegeven en voornamelijk gericht is op voetgangers. De plinten bieden ruimte aan werkplekken, winkels en horecagelegenheden. De stedelijkheid ontstaat mede door de variatie in kavels en woontypologieën, een mix van functies door werken aan huis en de vestiging van kleine bedrijven, en aandacht op ruimtelijke kwaliteit.

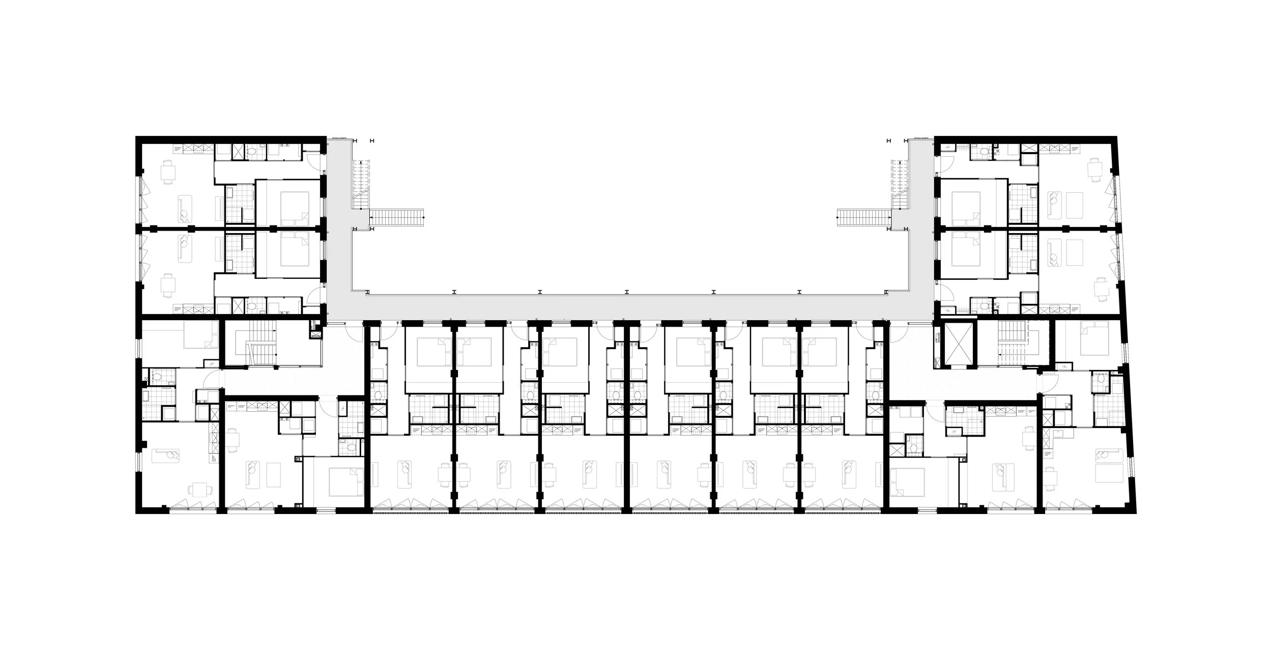
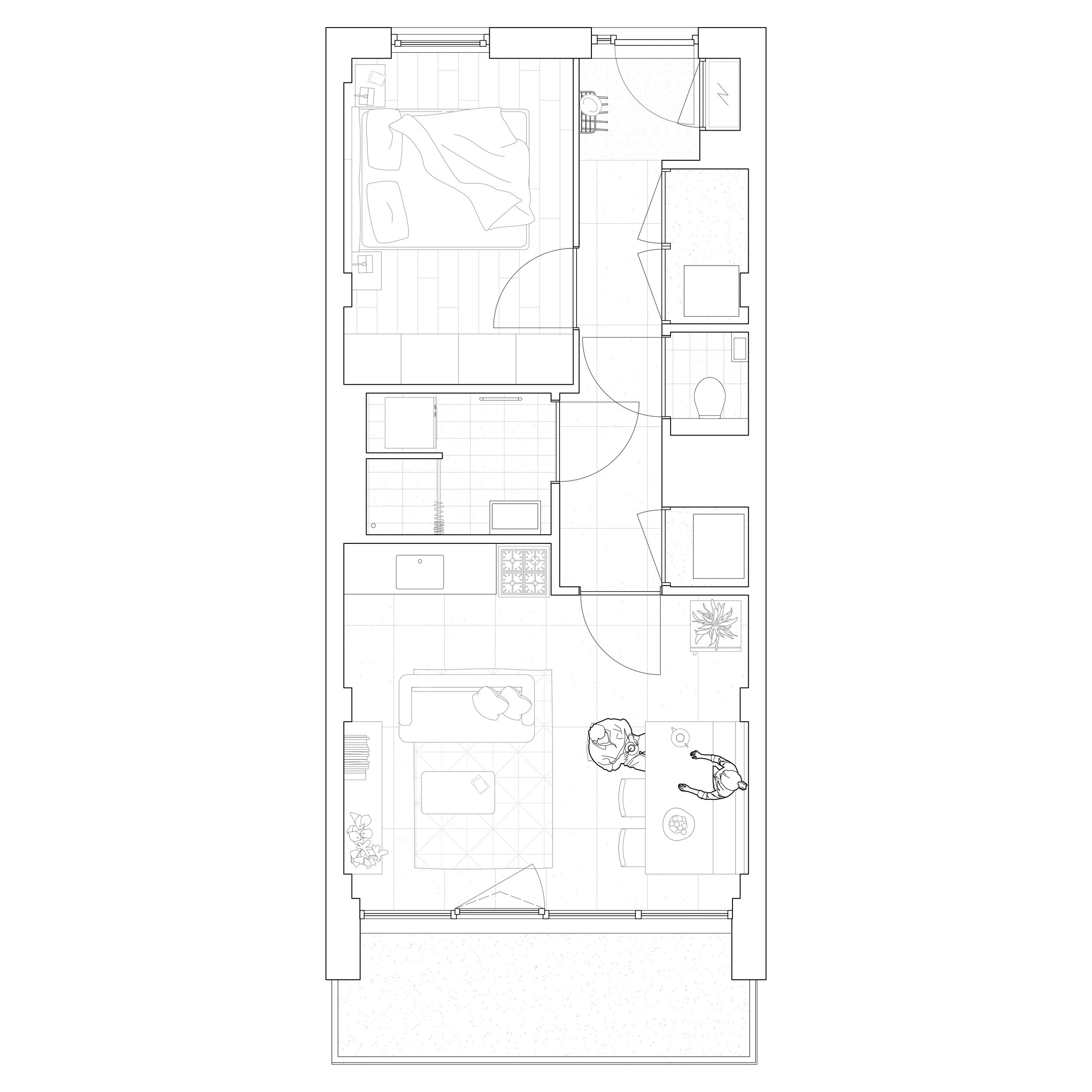
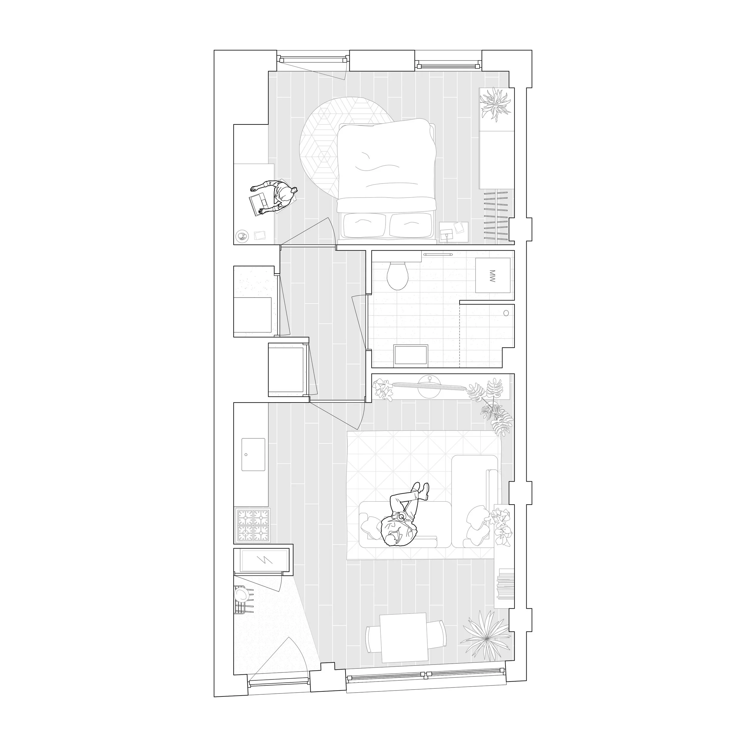
Wij maken het ontwerp voor een u-vormig deel van een gesloten bouwblok. Met aan de oostzijde het water en aan de zuidzijde uitzicht over een parkje, is dit een hele mooie locatie. 50 sociale huurwoningen bevinden zich rondom en gezamenlijke binnentuin. Het merendeel van de woningen is compact (2 kamer woningen) voor starters en kleine huishoudens. In de plint maken we gezinswoningen. Kinderen die daar opgroeien kunnen lekker spelen in het park aan de overkant.

Kruislaagshout

Bijzonder aan dit gebouw is dat de gehele draagstructuur is gemaakt van gelamineerd hout en CLT. Het voordeel van deze houten producten is de opslag van CO2. De gekapte bomen groeien terug, terwijl het gebouw nog staat. Zo kan een negatieve footprint worden bereikt. Hiermee voldoen we aan de duurzaamheidsambities van Ymere en aan het Houtbouwconvenant van de Metropool Regio Amsterdam (MRA). Na veel onderzoek te hebben gedaan naar de mogelijkheden en beperkingen van bouwen met CLT, zijn wij heel blij dat we dit nu in de praktijk kunnen brengen.

De gevelcomposities zijn sober en doelmatig, waarbij we als gevelbekleding gebruik gaan maken van tegels van gerecycled plastic (Pretty Plastic) in verschillende tinten groen en grijs. Verder passen we hout of een houtcomposiet toe voor de binnengevels. Bijna alle woningen hebben een royaal balkon, welke zijn afgewerkt met groene aluminium banden. Deze geven het gebouw een horizontale uitstraling. Rondom het gebouw komen geveltuintjes die een groene, zachte overgang tussen gebouw en openbare ruimte zullen gaan maken.

Status - Definitief Ontwerp // Start Bouw 2025

Locatie - Centrumeiland IJburg Amsterdam

Woningen - 50

Opdrachtgever - Ymere

Co-Maker - HSB

Constructie - Lūning

Installatieadviseur - Techniplan

Bouwfysica - ZRi

CLT - CLT-S (België)