De Bongerd

Oeverzone // Amsterdam

Het stedenbouwkundig plan voor de Bongerd in Amsterdam Noord is dat van een “Stedelijk Tuindorp”. Het Tuindorp van de 21ste eeuw met een groen woonmilieu en een directe relatie met het aan de oostkant van het gebied liggende Zijkanaal. Wij hebben het ontwerp gemaakt voor de woningen aan het water, waarmee de buurt straks zal worden beëindigd.

Ingebed in de zogenaamde “groene wiggen” die zich openen naar het Zijkanaal en met een duidelijke relatie met de al gerealiseerde woningen, staan de gebouwen met een oriëntatie op het brede water van het kanaal en de mooie groene overzone. De “groen-blauwe” omgeving is de drager van het plan en zal alle woningen een bijzondere kwaliteit geven. De gebouwen staan met grote tussenruimtes aan het water, waardoor het groen van de oever en de wiggen het gehele plan aan elkaar verweeft. 

Het Plan

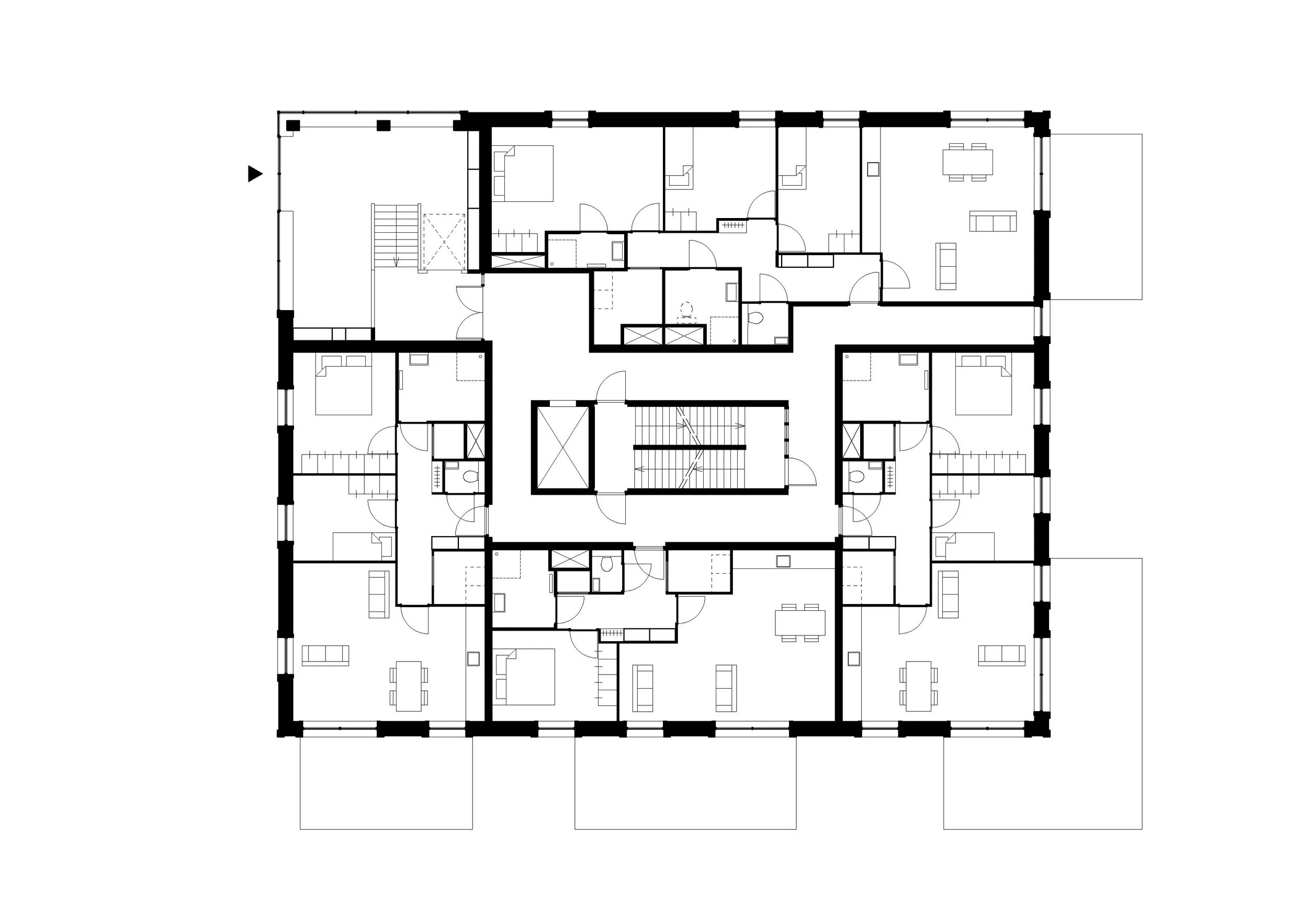
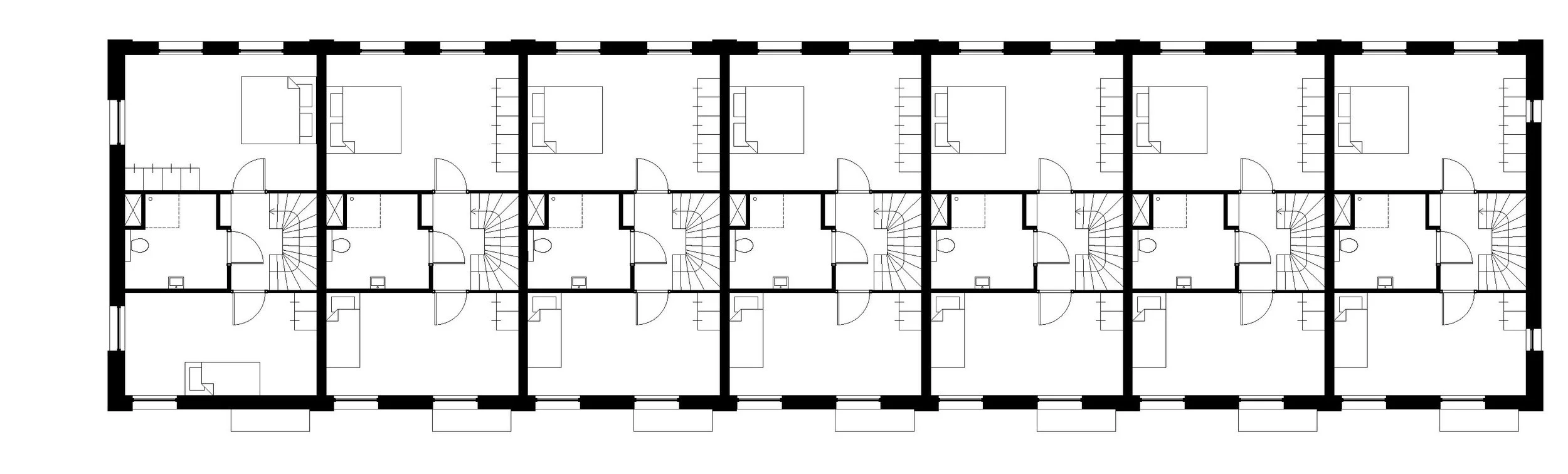
Het plan behelst drie klusters van elk twee appartementen gebouwen en twee rijtjes met grondgebieden woningen. Een combinatie van ruime eengezinswoningen en verschillende types appartementen zorgt voor diversiteit in het woningaanbod. Onder de appartementengebouwen en op straat in het openbare gebied zijn de parkeerplaatsen opgenomen.

En overal is er contact met en zicht op zowel het water als het groen. De tuinen van de rijwoningen zijn via achterpaden bereikbaar en hebben allen een eigen berging. In de appartementen zelf zijn ruime bergingen voorzien. Daar zijn ook collectieve fietsenbergingen in de kelders opgenomen, met meer dan genoeg plekken voor alle bewoners.

De Architectuur

Met het ontwerp van de Oeverzone zijn wij op zoek gegaan naar een architectuur die zich voegt naar de omgeving en tegelijkertijd een sterke eigen identiteit heeft.

De appartementengebouwen zijn kloeke volumes aan de oever, die een alzijdige uitstraling hebben. Wij hebben het water als inspiratie gebruikt in de compositie van de gevels, waar we patronen hebben gemaakt van betonnen gevelbanden en rood metselwerk. Net als golfjes of reflectie in het water, geven deze een bewegelijkheid aan de gebouwen, die van alle kanten steeds veranderen.

De rijwoningen leggen duidelijk een verband naar de bestaande buurt en vormen de grenzen van de “groene wiggen”. Door wit en rood metselwerk toe te passen, vinden wij aansluiting bij de reeds gebouwde woningen van de Bongerd. De woningen op de koppen bij de oever hebben een balkon op het water gericht, waardoor die plekken extra bijzonder worden.

De stoere en speelse gevels van de appartementen zijn verbonden met de rijwoningen doordat dezelfde kozijnen, metselwerk en detailleringen worden toegepast. Hierdoor is er een duidelijke homogeniteit in het gehele plan. Met rood metselwerk is een doorlopende plint gemaakt die alle gebouwen als het ware verbindt.